1.Амперметър
2.Кондензационен контролер
3. Устройство за защита на микрокомпютъра
6 .Барометър
7.Зареден дисплей
8.. Индикатор за повреда
9. Електрически задвижващ механизъм
10. Механизъм за ръчно задвижване
11. Електромагнитна ключалка
12~13 . Токов трансформатор
14. Щепсел за кабел
15. Трансформатор на напрежение
16. Нагревателна плоча от алуминиева сплав
KXRM6-12 Комбиниран тип GIS шкаф е подходящ за висока и ниска температура (+40℃~-40℃), влажност, прах, замърсяване със сол, мини, голяма надморска височина (1000m) и други среди. Краткотрайното потапяне във вода в рамките на 24 часа не оказва влияние върху употребата. Забележка: Ако надморската височина е по-висока, моля, посочете конкретната надморска височина.
KXRM6-12 ГИС шкаф от комбиниран тип отговаря на стандартите по-долу
IEC60056、IEC60298、IEC60129、IEC60420、IEC60265、IEC60694 и др...
GB3804、GB3906、GB11022 и т.н.
◆ SF6 газ в KXRM 6-12 GIS шкаф от комбиниран тип се използва като дъгогасителна и изолираща среда.
◆ Разпределителният шкаф е напълно запечатан и изолиран; Шините, превключвателите и частите под напрежение са изцяло затворени в корпус от неръждаема стомана.
◆ Кухината е пълна с 1,4 бара SF6 газ и нивото на защита достига IP67: цялото устройство на превключвателя е напълно незасегнато от външни условия на околната среда, което може да осигури нормалната работа на превключвателя дори в екстремни случаи, като например краткотрайно потапяне във вода, и продуктът не изисква поддръжка.
◆ Превключвателният шкаф има перфектно блокиращо устройство с "пет превенции", което напълно елиминира неизправността на работа на персонала и оборудването, която може да бъде причинена от човешка неправилна работа.
◆ Всички разпределителни шкафове имат надеждни безопасни канали за освобождаване на налягането, които могат да осигурят личната безопасност на операторите дори в екстремни случаи.
◆ Шкафът е разделен на комбинация от фиксирани единици и комбинация от разширяеми единици.
◆ Шкафът обикновено влиза и излиза отпред и може също да бъде удължен или удължен отстрани според различни позиции на монтаж.
◆ Размерът на шкафа е удобен за инсталиране и може да бъде подходящ за места с тясно пространство и лоши условия на околната среда.
◆ Шкафът може да бъде оборудван с електрически устройства, устройства за дистанционно управление и наблюдение според различните нужди на потребителите.
|
Артикул |
единица |
C модул |
F Модул |
V Модул |
CB модул |
||
|
|
Превключвател на товара |
Комбиниран |
Превключвател за вакуум |
Превключвател за изолиране/заземяване |
VCB |
Превключвател за изолиране/заземяване |
|
|
Номинално напрежение |
КВ |
12/24 |
12/24 |
12/24 |
12/24 |
12/24 |
12/24 |
|
Издържано напрежение на работната честота |
КВ |
42/50 |
42/50 |
42/50 |
42/50 |
42/50 |
42/50 |
|
Устойчивост на напрежение на мълния |
КВ |
95/125 |
95/125 |
95/125 |
95/125 |
95/125 |
95/125 |
|
Номинален ток |
A |
630/630 |
ЗАБЕЛЕЖКА1 |
630/630 |
|
1250/630 |
|
|
Ток на прекъсване |
A |
630/630 |
|
|
|
|
|
|
Ток на прекъсване на кабела |
A |
135/135 |
|
|
|
|
|
|
5% Ток на прекъсване на товара |
A |
31,5/- |
|
|
|
|
|
|
Ток на прекъсване при заземяване |
A |
200/100 |
|
|
|
|
|
|
Ток на прекъсване на зарядния кабел при повреда на заземяването |
A |
115/87 |
|
|
|
|
|
|
Ток на прекъсване на късо съединение |
КА |
|
ЗАБЕЛЕЖКА2 |
20/16 |
|
25/20 |
|
|
Способност за затваряне |
КА |
63/52,5 |
ЗАБЕЛЕЖКА2 |
50/40 |
50/40 |
63/50 |
63/50 |
|
Краткотраен издържан ток (2s) |
КА |
25/- |
|
|
|
|
|
|
Краткотраен издържан ток (3s) |
КА |
-/21 |
|
20/16 |
20/16 |
25/20 |
25/20 |
|
Механичен живот |
време |
5000 |
3000 |
5000 |
2000 |
5000 |
5000 |
ЗАБЕЛЕЖКА1: Зависи от номиналния ток на предпазителя
ЗАБЕЛЕЖКА2: Зависи от високоволтовия предпазител
▶D конфигурация на шкафа Вижте "Модул за кабелна връзка без заземяващ нож" за стандартна конфигурация и характеристики.
▶Конфигурация на C шкаф Вижте "Модул за превключване на товара" за стандартна конфигурация и характеристики.
▶Конфигурация на шкаф F Вижте "Вакуумен превключвателен модул" за стандартна конфигурация и характеристики.
Стандартната комбинация от комбиниран тип GIS шкаф KX-RM6 може също да осигури следните конфигурации
▶Капацитивен индикатор за напрежение на входящата втулка
▶Всяка въздушна камера е оборудвана с манометър за наблюдение на плътността на SF6.
▶Ухо за повдигане
▶Ръкохватка за работа
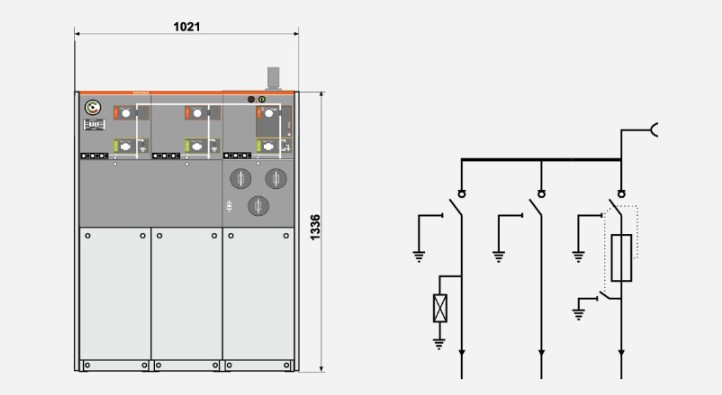
□ Превключвател на товара Модул C
○ Стандартна конфигурация и функции
▶630a шина
▶Превключвател за натоварване/заземяване с три станции
▶Единичен пружинен задвижващ механизъм с три станции с два независими превключвателя за натоварване и работни валове на превключвателя за заземяване.
▶Индикация на позицията на превключвателя за натоварване и превключвателя за заземяване
▶Хоризонтална изходяща втулка отпред, болтова втулка от серия 630A 400.
▶Капацитивен индикатор за напрежение за индикация на наелектризиране на втулката
▶За всички функции на превключвателя е удобно да инсталирате устройство за заключване на панела.
▶Манометър за газ SF6 (само един във всяка кутия за газ SF6)
▶Заземителна шина
▶Блокировка между заземителен превключвател и предния панел на кабелната стая
▶Резервирано разширение на автобуса
▶Външна шина
▶Превключвател на товара електрически задвижващ механизъм DC24V/48V/110V/220V; AC 110V/220V;
▶Индикатор за късо съединение и заземяване Измервателен пръстен токов трансформатор и амперметър
▶Измервателен пръстен токов трансформатор и ватметър
▶Мълниеотводът или двойната кабелна глава могат да бъдат монтирани на входната втулка на кабела.
▶Блокировка на ключове Заключване на заземяване под напрежение на входяща линия (заключващ превключвател за заземяване, когато втулката е под напрежение) AC/DC 110 V/220 V. спомагателен контакт
▶Позиция на превключвателя на товара 2NO+2NC, позиция на превключвателя за заземяване 2NO+2NC, манометър 1NO със сигнал и дъгогасител 1NO със сигнален контакт.
▶Вторичното устройство може да се инсталира в
▶Камера за вторична линия в горната част на разпределителния шкаф, кутия за ниско напрежение в горната част на разпределителния шкаф.
○ Стандартна конфигурация и функции
▶630a шина
▶Превключвател за натоварване с три станции, първият край на предпазителя е механично свързан със заземителния превключвател в края на предпазителя.
▶Пружинен задвижващ механизъм с три позиции, с два независими товарни превключвателя и работни валове на превключвателя за заземяване.
▶Индикация на позицията на превключвателя за натоварване и превключвателя за заземяване
▶Цехъл с предпазител
▶Предпазителят е разположен хоризонтално.
▶Индикация за задействане на предпазителя Хоризонтална изходяща втулка отпред, щепселна втулка от серия 200 от 200A.
▶Капацитивен индикатор за напрежение за индикация на наелектризиране на втулката
▶За всички функции на превключвателя е удобно да инсталирате устройство за заключване на панела.
▶Манометър за газ SF6 (само един във всяка кутия за газ SF6)
▶Заземителна шина
▶Параметрите на предпазителя за защита на трансформатора са 12KV, max 125A, 24KV и max 63A.
▶Блокировка между заземителен превключвател и предния панел на кабелната стая.
▶Запазено удължение на шина
▶Външен автобусен двигател за работа на превключвателя на товара 24V/48V DC 110V/220V DC/AC.
▶Паралелна изключваща бобина 24V/48V DC 110V/220V DC/AC.
▶Паралелна затваряща бобина 24V/48V DC 110V/220V DC/AC.
▶Измервателен пръстен токов трансформатор и амперметър Измервателен пръстен токов трансформатор и ватметър
▶Заключване на заземяване под напрежение на входящата линия (заключващ превключвател за заземяване, когато втулката е под напрежение) AC/DC 110 V/220 V. допълнителен контакт
▶Позиция за затваряне на товара 2NO+2NC, позиция на превключвателя за заземяване 2NO+2NC, изгорял предпазител 1NO, манометър 1NO със сигнал и дъгогасител 1NO със сигнален контакт.
▶Вторичното устройство може да се монтира в камерата на вторичната линия в горната част на разпределителния шкаф и кутията за ниско напрежение в горната част на разпределителния шкаф.
□ Измервателен модул M
○ Стандартна конфигурация и функции
▶12KV измервателен шкаф
▶2 токови трансформатора
▶2 напреженови трансформатора
▶6 броя втулки от серия 400 се използват за свързване на гъвкавата разширена външна шина на GSFR6-12 с горния вход и долния изход.
▶Прекъсвач на пламък за защита на PT
▶Компонент за ниско налягане 1 волтметър с превключвател, 1 амперметър с превключвател, ширина x височина x дълбочина =696×1806×820 mm.
○ Незадължителни конфигурации и функции
▶3 токови трансформатора
▶3 напреженови трансформатори мълниеотвод
▶Капацитивен индикатор за напрежение за индикация, че разпределителната уредба е заредена
▶Компонент с ниско налягане :1 мощномер, 1 реактивна мощност.
□ VCB модул CB
○Стандартна и опционална конфигурация и функции
▶Мълниеприемникът е монтиран на входящия кабел на шина 1250a/630a.
▶Вакуумен прекъсвач за защита на линия на 1250a/630a
▶Токов трансформатор
▶Вакуумен прекъсвач VD4X0 електрически задвижван 10VDC
▶Трансформатор на напрежение
▶Електрическо управление на UXO, горен прекъсвач за изолиране/заземяване с три станции на вакуумен прекъсвач. ▶Блок за защита и управление REF542plus (със защитен CT)
▶Шунтираща намотка 110V/220V DC
▶Затваряща бобина 110V/220VDC
▶Болтова втулка от серия 400 на изходна втулка 1250A/630A, разположена хоризонтално отпред.
▶Запазено разширение на шина на капацитивен индикатор за напрежение 1250A/630A за индикация на втулка под напрежение
▶Манометър за газ SF6 (само един във всяка кутия за газ SF6) Ширина x височина x дълбочина = 696 × 1806 × 781 mm. ▶Поредица включване/изключване: O-0,3s-CO-180s-CO.
▶Сензор за налягане на газа
1. Допълнителен контакт Всички превключватели на товара и прекъсвачи могат да бъдат оборудвани с 2NO+2NC, показващи позицията на превключвателя. На превключвателя на трансформатора и прекъсвача може да се монтира паралелна изключваща намотка (AC или DC), а контролният компонент за ниско напрежение се намира зад предния панел.
2. Индикация за напрежение Капацитивният индикатор за напрежение показва дали втулката е заредена или не, а гнездото върху нея може да се използва за ядрена фаза.
3. Индикатор за късо съединение и заземяване За да се улесни локализирането на повреда, модулът на кабелния превключвател може да бъде оборудван с индикатори за късо съединение и заземяване за лесно откриване на повреда.
4. Електрическа работа Това е стандартна схема за механизъм за ръчно управление на кабелен превключвател и трансформатор. Можете също така да изберете да инсталирате електрически задвижващ механизъм. Всички кабелни превключватели, вакуумни прекъсвачи и заземителни превключватели се управляват от механизми, разположени зад предния панел. Всички превключватели и прекъсвачи могат да се управляват от ръкохватка за управление (стандартна конфигурация) или могат да бъдат оборудвани с моторен задвижващ механизъм (аксесоари). Заземителният превключвател обаче може да се управлява само ръчно и е конфигуриран механизъм с възможност за затваряне на тока на повреда. Електрическият задвижващ механизъм може лесно да се реализира на етапи.
5. Кабелна връзка Инсталирани са стандартни втулки в съответствие с DIN47636. Всички втулки имат еднаква височина от земята и са защитени от капака на кабелната стая. Някои покриващи плочи могат да бъдат блокирани със заземителния превключвател, а специални двойни капаци на стаята за кабели могат също да се използват за двойни кабелни входящи линии.
6. Индикатор за налягане Обикновено оборудван с индикатор за налягане, който се формира от манометър. Освен това могат да се осигурят електрически контакти, за да се покаже намаляването на налягането.
7. Заключване с ключ Могат да се монтират ключалки за прекъсвачи, товарни превключватели и заземителни превключватели. Може да бъде оборудван със заключващ се полузаслон, който е подходящ за прекъсвачи, товарни превключватели и заземителни превключватели.
8. Дъгопрекъсвач Всички пръстеновидни мрежови устройства могат да бъдат оборудвани с дъгогасители. Когато вътре се появи дъгова дъга, дъгогасителите автоматично ще се затворят на входящата втулка, включително D, DE и V модули, и всички кабелни модули могат да бъдат оборудвани с дъгогасител. Те трябва да поръчват с устройството и не могат да го променят. Действието на дъговия пожарогасител може да бъде показано чрез този метод и електрическите контакти в SF6 шкафа са свързани към клемата зад предния панел.
◆ Схема 1 SA+CCF+
Монтирайте мълниеприемника на шината и го оставете за разширяване.
Забележка: Броят на превключвателите не трябва да бъде по-малък от 3.
◆ Схема 2 CCF+
Монтирайте мълниеотвода във входящата линия и резервирайте разширението.
◆ Схема 3 W+M+FFF
Изчисление на HV страна
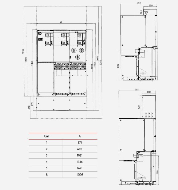
● Таблици със структура и размери на KXRM6-12 комбиниран тип ГИС шкаф



Адрес
№ 228 Weishiqi Road, Зона на икономическото развитие на Yueqing, град Венжоу, провинция Жеджианг, Китай
Тел
Електронна поща